Главная Каталог продукции Прайс-лист Полезная информация контакты
Редукторы цилиндрические
Редукторы червячные
Мотор-редукторы
Преобразователи частоты
Устройства плавного пуска
Аксессуары для ПЧ
Энкодеры
Карта сайта

 

Приводная техника

 

Вся продукция сертифицирована. Мы будем рады видеть Вас клиентом нашей компании.

 

 

Редукторы червячные 2Ч-80

Редукторы червячные 2Ч-80

 

Редукторы червячные одноступенчатые универсальные предназначены для изменения крутящих моментов и частоты вращения вала в качестве комплектующих в приводах машин, оборудования и механизмов.

 

УСЛОВИЯ ПРИМЕНЕНИЯ РЕДУКТОРОВ:

  • нагрузка постоянная и переменная, одного направления и реверсивная;
  • работа с периодическими остановками и длительная до 24 часов в сутки;
  • вращение валов в любую сторону;
  • частота вращения входного вала не более 1800 об/мин;
  • атмосфера типа I и II по ГОСТ 15150-69 при запыленности воздуха не более 10 мг/м3;
  • климатические исполнения У,Т для категорий размещения 1-3 и климатические исполнения УХЛ и О для категорий размещения 4 по ГОСТ 15150-69.

 

Ч-80

 

Ч-80

 

Ч-80

 

Ч-80

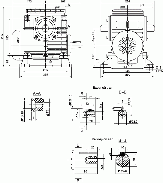
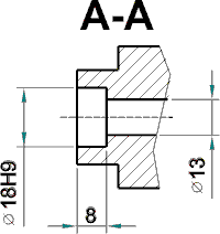
РИС1.
Габаритные и присоединительные размеры

 

Ч-80

РИС2.
Варианты сборки редукторов и расположения червяной пары

 

Ч-80

РИС3.
Варианты расположения лап
(1-без лап; 2-5 расположение лап по плоскостям)

 

ТЕХНИЧЕСКИЕ ХАРАКТЕРИСТИКИ

Номи- нальные переда- точные числа Uном. Значения допустимых крутящих моментов на выходном валу, к.п.д. и термической мощности при частоте вращения входного вала n, об/мин. Допускаемая консольная нагрузка на вале , Н
750 1000 1500 входном выходном
Мт, Н м h Nт, квт Мт, Н м h Nт, квт Мт, Н м h Nт, квт
8,0
280
0,89
3,1
250
0,90
3,6
212
0,91
4,6
500
4000
10,0
250
0,88
2,2
224
0,89
2,6
190
0,90
3,4
12,5
250
0,86
1,8
230
0,87
2,2
195
0,89
2,8
16,0
280
0,83
1,7
250
0,85
1,9
218
0,86
2,5
20,0
243
0,79
1,2
224
0,81
1,5
195
0,84
1,9
25,0
243
0,78
1,0
224
0,79
1,2
195
0,83
1,5
31,5
300
0,72
1,1
280
0,75
1,0
250
0,78
1,7
40,0
243
0,67
0,7
218
0,71
0,9
195
0,73
1,1
50,0
243
0,65
0,6
230
0,66
0,8
206
0,71
0,9
63,0
224
0,60
0,5
212
0,62
0,6
190
0,64
0,8
80,0
200
0,55
0,4
190
0,58
0,5
175
0,61
0,6

 


ПРИМЕР УСЛОВНОГО ОБОЗНАЧЕНИЯ ПРИ ЗАКАЗЕ

Ч-80-40-52-1-2ВУЗ

  • Ч - червячный редуктор;
  • 80 - межосевое расстояние
  • 40 - номинальное передаточное число
  • 52 - вариант сборки
  • 1 - вариант по расположению червячной пары
  • 2 - вариант по расположению лап
  • В - с вентилятором
  • УЗ - климатическое исполнение и категория размещения

 

Приводная техника (мотор-редукторы, преобразователи частоты и устройства плавного пуска) отправляется покупателю транспортной компанией. По всем вопросам обращаться в офис.


Мы всегда рады видеть у себя наших старых партнеров и ждем новых.

Доставка во все регионы России!